THE JEWEL IN THE CROWN, POSTION PERFECT.

This beautiful home is in one of Mindarie's most sought after locations, surrounded by quality homes and enjoying stunning Ocean views. Within easy walking distance to the Mindarie Primary School, Claytons Beach and the popular Mindarie Marina full of great cafes, bars and Restaurants. This magnificent residence encapsulates the ultimate in-coastal living with its impressive features throughout, from the moment you enter this home you will be welcomed into the expansive quality 5/6-bedroom home that just embraces you, built over two luxury floors, this clever design maximises its modest footprint via the seamless integration of indoor and outdoor living zones.

Blissfully private the outdoor area with the sparkling below ground pool surrounded by tropical gardens takes you into an oasis enjoying your own paradise with a gorgeous Bali hut with decking, looking back onto the massive alfresco under the main roof with vaulted cedar lined ceilings and a granite outdoor kitchen complete with built in BBQ, the perfect place to relax and enjoy quality time with family and friends.
 

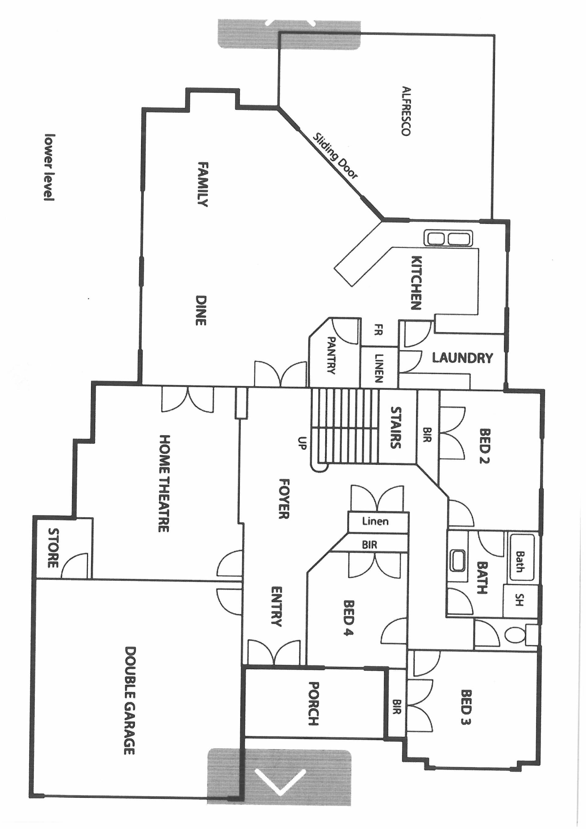
The living accommodation on the lower level includes a spacious theatre room, an open plan lounge, dining and stunning kitchen complete with Caesar stone bench tops and quality stainless steel appliances. The Three double bedrooms all have built- in robes, one semi-ensuite to the modern family bathroom suite which makes this the perfect guest room. A large laundry room including walk-in linen & loads of cupboards space completes the lower level of the home.

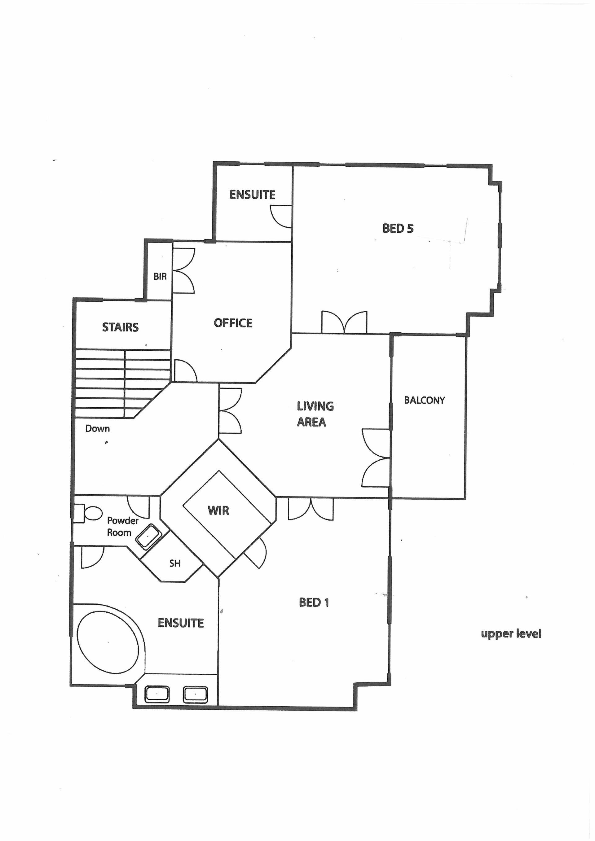
The upper level of this beautiful home consists of a separate study/6th bedroom, a parents retreat that leads to a front balcony where you can sit back and watch those magical sunsets, the large master bedroom with ocean views, a walk-in robe, luxury en-suite complete with spa bath and separate powder room, whilst the 5th bedroom sits adjacent  its own en-suite, ocean views perfect for the extended family guests.

Your search for excellence stops right here, this fantastic family home is immaculate with nothing to do, all the work has been done for you, we look forward to seeing you at the first home open to explore this home that you will just not want to leave.

Facts and Features:
Welcoming entrance hall.
Theatre room.
Well-appointed kitchen with walk-in pantry Induction cook top, servery window from kitchen to outdoor alfresco.
Open plan family and dining.
Five Bedrooms, two en-suites.
Home study/sixth bedroom.
Family bathroom suite.
Laundry with plenty of cupboard storage space.
Upstairs sitting room or parents retreat  with balcony and ocean views.
Resort style outdoor entertaining area with below ground pool, bail hut and built-in BBQ.
Ducted reverse cycle zoned air-conditioning additional split system air-conditioning.
Double lockup garage with remote access and additional storage room.
In roof storage space with fold away ladder access.
Solar roof panels.
Security alarm, the list goes on.

To appreciate the quality of everything this home offers be sure to take the time out to inspect this home through Mayfair Property Services.

Cannot make the home open and would prefer a private inspection then contact:
Mayfair Property Services on 9407 9188, Clint Evans 0435 022 129
or email: sales@mayfairpropertyservices.com.au      

5 3 2 612 m2
Address 24 Mariners View, Mindarie
Price SOLD
Property Type Residential
Property ID 704
Category House
Land Area 612 m2
Floor Area 302 m2

Agent Details

Clint Evans photo

Clint Evans

0435 022 129
View Profile